At Legendary Homes, we’re proud to present this award-winning design, recognised at the Registered Master Builders House of the Year Awards. Set on a sunny corner site, the home makes a strong first impression with its modern blend of brick, cedar, and weatherboard, finished with high-pitched roofs for a clean, contemporary look.
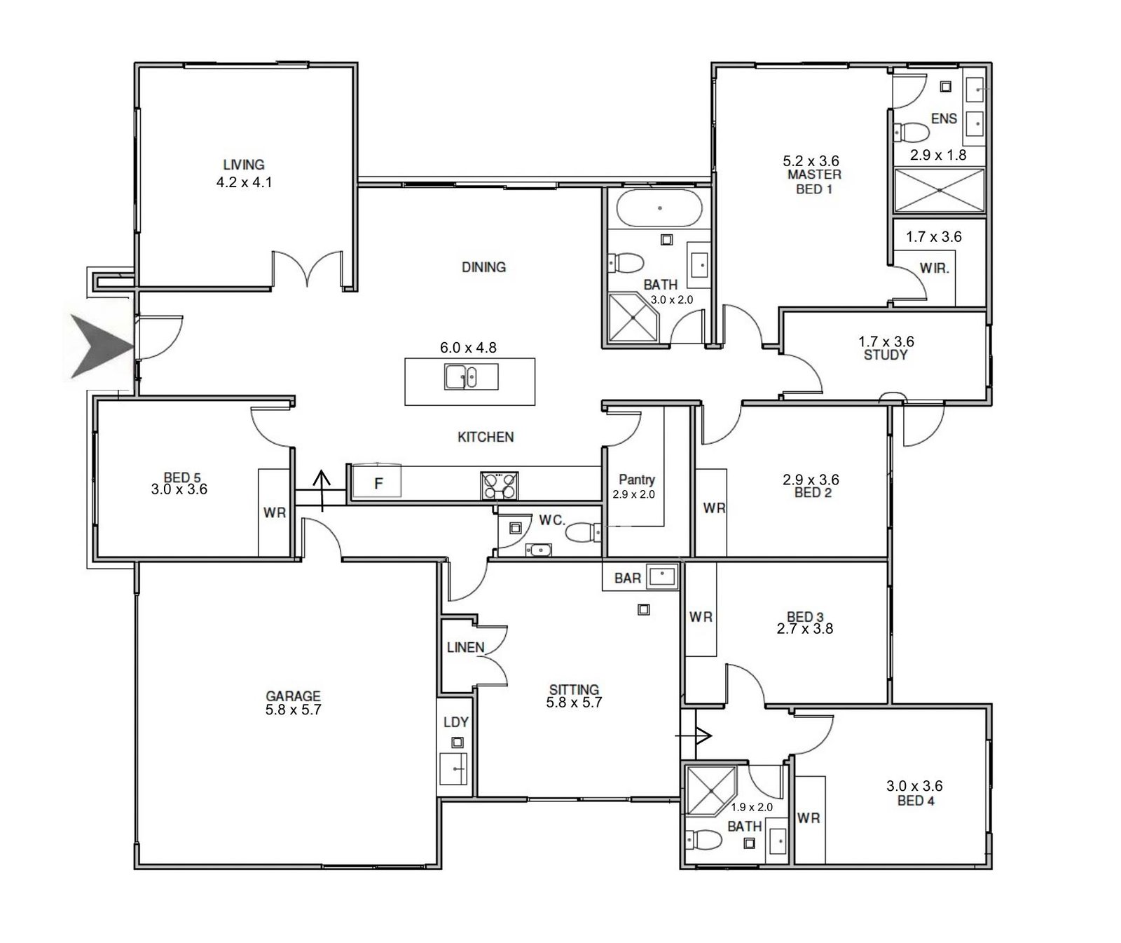
Inside, approximately 227sqm of light-filled living has been thoughtfully planned around a central kitchen with a generous island, quality appliances, and a walk-in pantry. The open-plan living and dining flows seamlessly to a Kwila deck, perfect for easy entertaining.
The master suite features a walk-in wardrobe and ensuite, supported by two additional bedrooms, a family bathroom, and a separate study. Adding flexibility is a versatile granny potential area with two bedrooms, a living space, kitchenette, and bathroom — ideal for extended family or guests.
Located in a growing, family-friendly neighbourhood close to parks, Ahutoetoe School, and a future shopping centre, this home reflects the quality, comfort, and smart design Legendary Homes is known for.





























