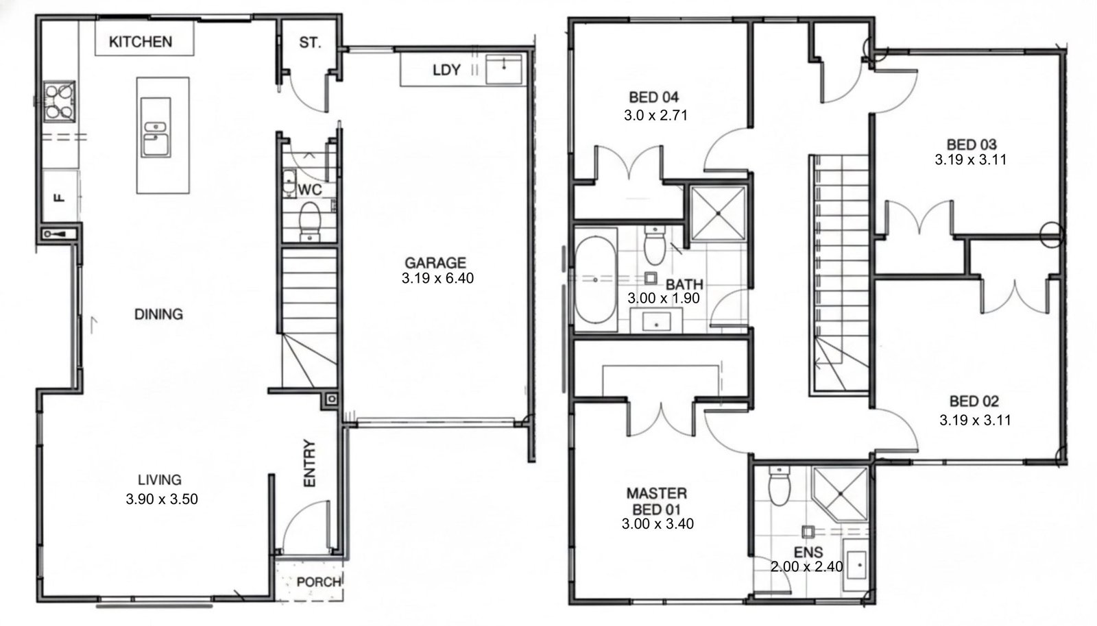
Step inside and you’ll immediately see what we do best at Legendary Homes. A crisp, modern kitchen with stone benchtops, Fisher & Paykel appliances, and generous storage means you can comfortably stock up for the holiday season. The open-plan dining and living area flows seamlessly to a sunny outdoor space — ideal for weekend BBQs, kids and pets at play.
Upstairs, we’ve designed the master suite as a true retreat, complete with a walk-in wardrobe and a fully tiled ensuite. The additional bedrooms are equally generous, giving everyone their own space and helping keep the peace at home.
Located directly opposite the town center, these homes put coffee, groceries, and even a cheeky pint after work literally across the road, making everyday life effortless. Already popular with families, first-home buyers, upsizers, and downsizers alike. Backed by a 10-Year Master Build Guarantee and the trusted craftsmanship of Legendary Homes, you can be confident your home is built to last. With freehold fee simple titles and no Residents’ Society or body corporate levies, ownership is refreshingly simple — just the way a home should feel.

















